6 Woodvue Cir Sandwich, MA 02644
Listing Courtesy of: MLS PIN / Today Real Estate, Inc. / Glenn Knapik

  6 Woodvue Cir Sandwich, MA 02644

Active (2 Days)
$499,900 (USD)
4
BED
2
BATH
1,512
SQFT

Description

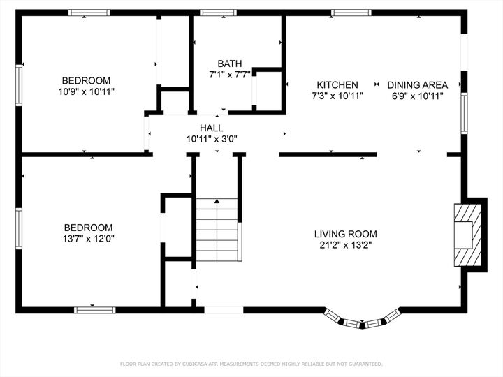
Discover the potential of this 4-bedroom, 2-bath home tucked away at the end of a quiet cul-de-sac in Forestdale. Ideally located near Route 130 with convenient access to Route 6, this property offers both privacy and accessibility. The first floor features hardwood floors in the living room, hallway, and two bedrooms, along with a wood-burning fireplace that adds warmth and charm. An eat-in kitchen flows into the living room, creating an inviting space for everyday living. Two bedrooms and a bath on the second floor. The wooded lot provides a natural setting, and the home includes a full basement with interior and exterior access, offering plenty of storage or expansion possibilities. Passing Title V in hand. Being sold as-is, this property is a great opportunity to customize and make it your own. Additional photos coming soon.

MLS #:
73437055
Taxes
$4,377(2025)
Lot Size
0.53 acres
Type
Single-Family Home
Year Built
1973
Style
Cape
County
Barnstable County

Listed By

Glenn Knapik, Today Real Estate, Inc.
Source
MLS PIN
Last checked Oct 5 2025 at 5:19 AM GMT+0000
Bathroom Details
Interior Features
  • Range
  • Refrigerator
  • Dryer
  • Washer
  • Laundry: Washer Hookup
  • Water Heater
Kitchen
  • Flooring - Hardwood
  • Countertops - Upgraded
  • Window(s) - Picture
Lot Information
  • Wooded
  • Gentle Sloping
  • Cul-De-Sac
Property Features
  • Fireplace: 1
  • Fireplace: Living Room
  • Fireplace: Family Room
  • Foundation: Concrete Perimeter
Heating and Cooling
  • Oil
  • Baseboard
  • None
Basement Information
  • Full
Flooring
  • Hardwood
  • Vinyl
Exterior Features
  • Roof: Shingle
Utility Information
  • Utilities: Water: Public, Washer Hookup, For Electric Range
  • Sewer: Private Sewer
School Information
  • Elementary School: Forestdale School
  • Middle School: Sandwich Public Schools
  • High School: Sandwich High
Parking
  • Stone/Gravel
  • Off Street
  • Total: 4
Living Area
  • 1,512 sqft
Location
   
Calculate drive times to this property
 
Powered by INRIX® Drive Time

Powered by Walk Score®

Estimated Monthly Mortgage Payment

*Based on Fixed Interest Rate withe a 30 year term, principal and interest only

Listing price
Down payment
%
Interest rate
%
Mortgage calculator estimates are provided by Coldwell Banker Real Estate LLC and are intended for information use only. Your payments may be higher or lower and all loans are subject to credit approval.
Disclaimer: The property listing data and information, or the Images, set forth herein wereprovided to MLS Property Information Network, Inc. from third party sources, including sellers, lessors, landlords and public records, and were compiled by MLS Property Information Network, Inc. The property listing data and information, and the Images, are for the personal, non commercial use of consumers having a good faith interest in purchasing, leasing or renting listed properties of the type displayed to them and may not be used for any purpose other than to identify prospective properties which such consumers may have a good faith interest in purchasing, leasing or renting. MLS Property Information Network, Inc. and its subscribers disclaim any and all representations and warranties as to the accuracy of the property listing data and information, or as to the accuracy of any of the Images, set forth herein. © 2025 MLS Property Information Network, Inc.. 10/4/25 22:19